逗子マリーナ 7号棟 5階
南東向きのお部屋

| 賃料 | 月額11,5,000円 |
|---|---|
| 専有面積 | 53.82㎡ |
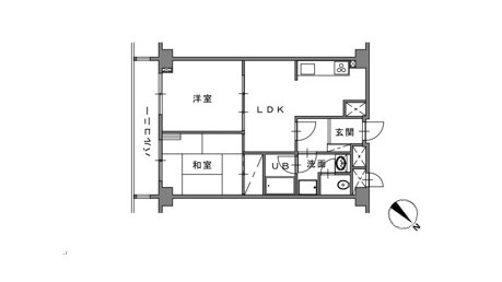
| 間取 | 2LDK |
| 所在地 | 神奈川県逗子市小坪5丁目23番17 |
| 交通 | JR横須賀線「鎌倉」駅 バス13分 「小坪」バス停 徒歩5分 |


物件場所

物件概要
| 種別 | マンション |
|---|---|
| 物件名称 | 逗子マリーナ 7号棟 |
| 賃料 | 月額11,5,000円 |
| 所在地 | 神奈川県逗子市小坪5丁目23番7 |
| 交通 | JR横須賀線「鎌倉」駅 バス13分 「小坪」バス停 徒歩5分 |
| 専有面積 | 53.82㎡ |
| バルコニー | 7.20㎡ |
| 間取り | 2LDK |
| 間取り内訳 | - |
| 構造 | 鉄筋コンクリート造陸屋根地下1階付5階建 |
| 階数 | 5階 |
| 築年月 | 昭和57年6月 |
| 向き | 東南 |
| 駐車場 | 共有駐車場 有 地下駐車場(1週間500円/1週間以降1日につき500円加金) |
| 礼金 | 賃料の1ケ月分 |
| 敷金 | 賃料の1ヶ月分 |
| 現況 | 空室 |
| 入居日 | 相談 |
| 施主会社 | 太洋不動産興業(株) |
|---|---|
| 施工会社 | (株)竹中工務店 |
| 管理会社 | (株)リビエラリゾート |
| 管理形態 | 全部委託・日勤 |
| 総区画・戸数 | 280戸 |
| 用途地域 | 第2種住居地域 |
| 取引態様 | 媒介 |
| 情報登録日 | - |
| 次回更新日 | 随時 |
| 免許番号 | 神奈川県知事(11)第13435号 |
| その他 | 電気(東京電力) ガス(東京ガス) 飲用水(公営) エレベーター(有) トランクルーム(無) 共用駐車場(有) 共用駐輪場(有) ペット:不可 ピアノ:不可 事務所:不可 賃貸借種類:普通賃貸借契約 賃貸借期間:2年 ※借家人賠償付き住宅総合保険に加入していただきます 保険会社:要加入 保証会社/内容 フォーシーズ㈱ 初回保険料:賃貸の0.5ケ月~1ケ月分 毎年更新 更新料:1万円(別途消費税) |
リビエラリゾート不動産
〒249-0008 神奈川県逗子市小坪5-23-9
TEL0467-23-5615
【電話受付】9:00~17:00
【定休日】火曜・水曜
神奈川県知事(11)第13435号
(公社)全国宅地建物取引業保証協会