逗子マリーナ 本館 7階
人気の富士山・江の島側物件

| 賃料 | 月額230,000円 |
|---|---|
| 専有面積 | 36.00㎡ |
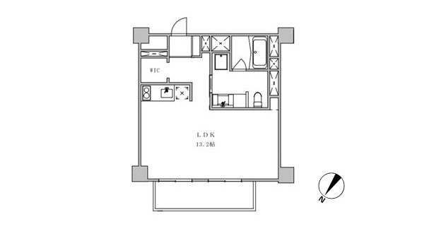
| 間取 | 1Room |
| 所在地 | 神奈川県逗子市小坪5丁目23番10 |
| 交通 | JR横須賀線「鎌倉」駅 バス13分 「小坪」バス停 徒歩8分 |




物件場所

物件概要
| 種別 | マンション |
|---|---|
| 物件名称 | 逗子マリーナ 本館 |
| 賃料 | 月額230,000円 |
| 所在地 | 神奈川県逗子市小坪5丁目23番10 |
| 交通 | JR横須賀線「鎌倉」駅 バス13分 「小坪」バス停 徒歩8分 |
| 専有面積 | 36.00㎡ |
| バルコニー | 6.48㎡ |
| 間取り | 1Room |
| 間取り内訳 | - |
| 構造 | 鉄骨鉄筋コンクリート造陸屋根地下1階付地上12階建 |
| 階数 | 7階 |
| 築年月 | 昭和46年6月 |
| 向き | 北西 |
| 駐車場 | 駐車場有(共用)/月額8,800円 年間契約105,600円 |
| 礼金 | 賃料の1ケ月分 |
| 敷金 | 賃料の1ヶ月分 |
| 現況 | 空室 |
| 入居日 | 相談 |
| 施主会社 | 太洋不動産興業(株) |
|---|---|
| 施工会社 | (株)竹中工務店 |
| 管理会社 | (株)リビエラリゾート |
| 管理形態 | 全部委託・日勤 |
| 総区画・戸数 | 111戸 |
| 用途地域 | 第2種住居地域 |
| 取引態様 | 媒介 |
| 情報登録日 | - |
| 次回更新日 | 随時 |
| 免許番号 | 神奈川県知事(11)第13435号 |
| その他 | 電気(東京電力) ガス(東京ガス) 飲用水(公営) エレベーター(有) トランクルーム(無) 共用駐車場(有) 共用駐輪場(有) ペット:不可 ピアノ:不可 事務所:不可 賃貸借種類:普通賃貸借契約 賃貸借期間:2年 ※借家人賠償付き住宅総合保険に加入していただきます 保険会社:要加入 ※1年未満解約の場合、違約金条項あり 保証会社/内容 フォーシーズ㈱ 初回保険料:賃貸の0.5ケ月~1ケ月分 毎年更新 更新料:1万円(別途消費税) |
リビエラリゾート不動産
〒249-0008 神奈川県逗子市小坪5-23-9
TEL0467-23-5615
【電話受付】9:00~17:00
【定休日】火曜・水曜
神奈川県知事(11)第13435号
(公社)全国宅地建物取引業保証協会