逗子マリーナ 8号棟 2階
収納棚豊富の洋室・海が見えるお部屋

| 価格 | 5,500万円 |
|---|---|
| 専有面積 | 82.23㎡ |
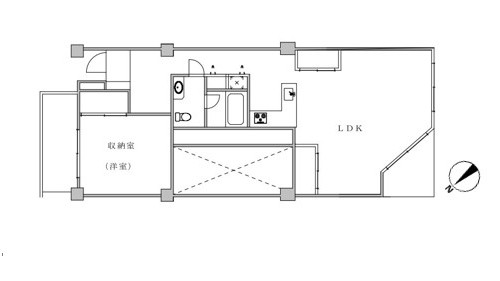
| 間取 | 1LDK |
| 所在地 | 神奈川県逗子市小坪5丁目23番8 |
| 交通 | JR横須賀線「鎌倉」駅 バス13分 「小坪」バス停 徒歩5分 |
物件場所

物件概要
| 種別 | マンション |
|---|---|
| 物件名称 | 逗子マリーナ 8号棟 |
| 売買価格 | 5,500万円 |
| 所在地 | 神奈川県逗子市小坪5丁目23番8 |
| 交通 | JR横須賀線「鎌倉」駅 バス13分 「小坪」バス停 徒歩5分 |
| 専有面積 | 82.23㎡ |
| バルコニー | 4.50㎡ |
| テラス・専用庭 | - |
| 間取り | 1LDK |
| 間取り内訳 | - |
| 構造 | 鉄筋コンクリート造陸屋根地下1階付5階建 |
| 階数 | 階 |
| 築年月 | 平成元年3月 |
| 向き | 南西 |
| 駐車場 | 無 |
| 管理費 | 28,8000円 |
| 修繕積立金 | 6,940円 |
| 現況 | 空室 |
| 引渡し時期 | 相談 |
| 施主会社 | 西洋環境開発㈱ |
| 施工会社 | (株)竹中工務店 |
| 管理会社 | (株)リビエラリゾート |
| 管理形態 | 全部委託・日勤 |
|---|---|
| 総区画・戸数 | 121戸 |
| 販売区画・戸数 | 1戸 |
| 都市計画 | - |
| 用途地域 | 第2種住居地域 |
| 建ぺい率 | 60% |
| 容積率 | 200% |
| 敷地の権利形態 | 所有権 |
| 地目 | 宅地 |
| 敷地面積 | -㎡ |
| 私道面積 | -㎡ |
| 建築面積 | -㎡ |
| 延床面積 | -㎡ |
| 接道 | 公道 |
| 取引態様 | 媒介 |
| 情報登録日 | - |
| 次回更新日 | 随時 |
| 免許番号 | 神奈川県知事(11)第13435号 |
| その他 | ※売り主の契約不適合責任は免責となります ※逗子マリーナオーナーズ会 会員権を併せて売却も可能です ※収納は作り付け収納棚有 ガス:東京ガス エレベーター:有 トランクルーム:無 駐車場:無 |
リビエラリゾート不動産
〒249-0008 神奈川県逗子市小坪5-23-9
TEL0467-23-5615
【電話受付】9:00~17:00
【定休日】火曜・水曜
神奈川県知事(11)第13435号
(公社)全国宅地建物取引業保証協会





