• マリブホテル PRIVATE VILLA

プライベート ヴィラ

  • MALIBUHOTEL PRIVATEVILLA_TERRACE
  • MALIBUHOTEL PRIVATEVILLA_LIVING
  • MALIBU HOTEL PRIVATE VILLA BEDROOM

自由で開放的なリゾートステイ
ドッグフレンドリールーム

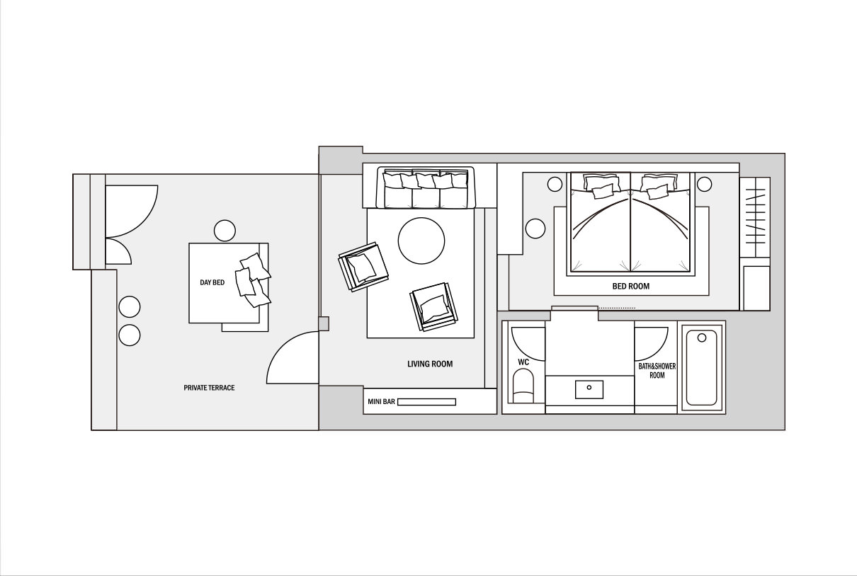
ウォーターテラスを見渡せる場所に位置し、専用のアプローチやガーデンを設えた「PRIVATE VILLA」。
屋外と室内を一体化させたような開放感に溢れ、レストランからテイクアウトしたお料理を青空の下で楽しむなど、アウトドアリビングでもゆっくりとお過ごしいただけます。また愛犬と宿泊できる設備を整えており、自由度の高いリゾートステイを叶えます。

お部屋情報
広さ:お部屋50㎡ + ガーデンテラス41㎡
定員:3名様
設置ベッド:幅120cm × 丈200cm 2台

ロゴ:マリブホテル

マリブホテル
〒249-0008
神奈川県逗子市小坪5丁目23-16
リビエラ逗子マリーナ内